New Hermosa Ave. Approval Raises More Questions About Coastal Commission Overreach

The Coastal Commission just approved a Hermosa Beach development — then attached conditions that read less like permit requirements and more like a property management contract.

New Hermosa Ave. Approval Raises More Questions About Coastal Commission Overreach
The existing triplex at 2464 Hermosa Ave.
🏠
IN BRIEF :

- The Coastal Commission approved a redevelopment at 2464 Hermosa Avenue, replacing a 1953 triplex unit — but attached conditions that go well beyond coastal protection, and reflect a pattern of increasing overreach in Hermosa Beach by the Commission.

- Unusual special conditions require separate utility meters for each unit, specific garage access and layout for all units in perpetuity, and ten years of annual rental reports filed with the state disclosing tenants, rent charged, and how the units are being used.

- Hermosa Beach Councilmember Ray Jackson, who sits on the Coastal Commission, was present at the March 11 hearing, and approved all of these new conditions.

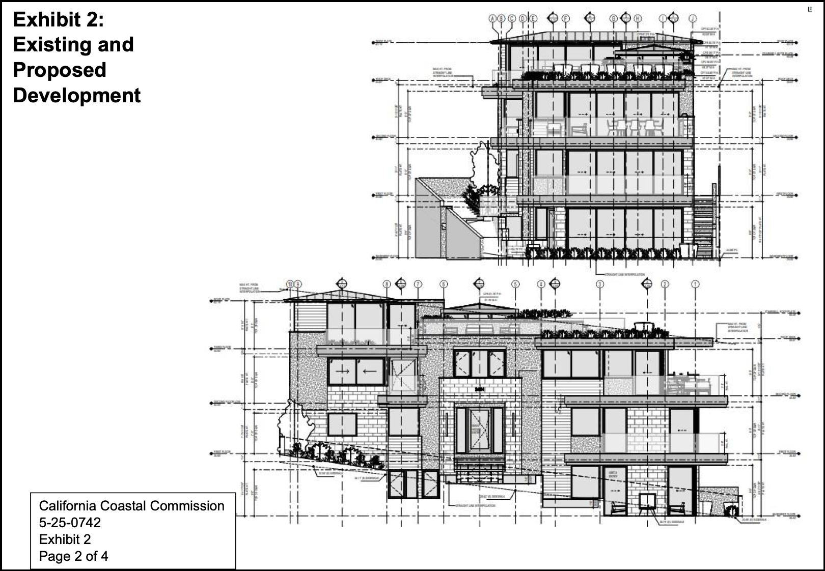
At 2464 Hermosa Avenue, a 1953 triplex is coming down. In its place, the applicant wants to build a three-story, 5,513-square-foot structure with a main residence and two accessory dwelling units. The California Coastal Commission approved it this week, 270 feet from the beach, in a built-out residential neighborhood where this kind of redevelopment happens constantly.

So far, routine.

What isn't routine is what the Commission attached to that approval. Three of the eight special conditions imposed on this private development project are extraordinary in their reach — and together they form a picture of an agency that is no longer simply regulating the coastline. It is inserting itself into the internal operations of a private residential building.

Read the full story for free

Sign up for free now to read the full story and get access to all posts for subscribers only. Join The Review today.

Subscribe
Already have an account? Sign in

Great! You’ve successfully signed up.

Welcome back! You've successfully signed in.

You've successfully subscribed to The Hermosa Review.

Success! Check your email for magic link to sign-in.

Success! Your billing info has been updated.

Your billing was not updated.